Espace propriétaire
fr

Votre recherche

Béziers (34500)

96 m²

A LOUER-LOCAL COMMERCIAL 96M2- BEZIERS

3 667 € / mois HT - HC*
Ref : 7400
A propos de ce bien

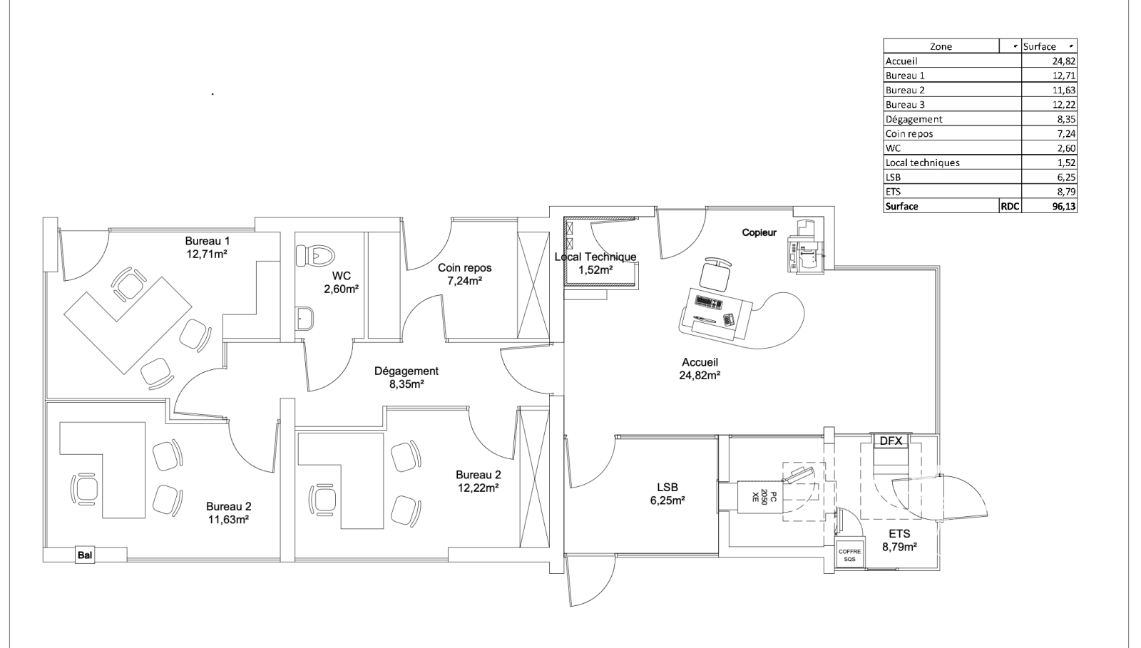
Idéalement situé au sein d’un centre commercial dynamique, ce local commercial de 96 m² bénéficie d’une excellente visibilité et d’un fort passage, à proximité immédiate d’un Intermarché Super et d’autres commerces de proximité (pharmacie, presse, etc.).

Le local, en parfait état, est adapté à de nombreuses activités commerciales ou de services.Toutes activités sont autorisées, sauf celles générant des nuisances sonores ou olfactives.

•Superficie : 96 m² •Loyer mensuel : 3 667 € HT •Accessibilité : parking clientèle, accès PMR •Environnement commercial attractif et fréquenté


Ce local offre une belle opportunité pour implanter votre activité dans un secteur à fort potentiel commercial.

Contactez-nous dès maintenant pour plus d’informations ou organiser une visite.

Frais d'agence charge acquéreur : 15% du loyer annuel HT, 6600 ht soit 7920€ ttc.

Youssef Addah Agent Commercial Hérault Tel: 06 74 17 00 18 Inscrit RCS de Montpellier 490 455 284 Côté France, Agence immobilière - Réseau immobilier Franco-Belge. Achat - vente - à vendre - acheter - investir www.cotefranceimmo.fr

La présente annonce immobilière a été rédigée sous la responsabilité éditoriale de EI Youssef ADDAHRAOUI, Agent Commercial mandataire en immobilier immatriculé au Registre Spécial des Agents Commerciaux (RSAC) du Tribunal de Commerce de Montpellier sous le numéro 490 455 284 Agent Commercial Hérault Tel: 06 74 17 00 18 , Côté France, Agence immobilière - Réseau immobilier Franco-Belge. Achat - vente - à vendre - acheter - investir *** Référence annonce : 7400

Annonce proposée par un agent commercial

Descriptif de ce bien
Général
Type de transac Local professionnel
Code postal 34500
Superficie (m²) 96
Détails
Mode de chauffage Autre
Type de chauffage Air pulsé
Format de chauffage Individuel
Vitrine 10
Zone de chalandise supermarché
Financier
Loyer HT 3 667 € / mois
Honoraires HT charge locataire 6 600 €
Dont état des lieux Non renseigné
Dépot de garantie Non renseigné
Charges locatives HT (provision donnant lieu à régularisation annuelle) 120 €
Energie
DPE GES
Autour du bien
  • Commerces et santé
  • Loisirs
  • Ecoles
  • Transports
  • Pratique
Contacter pour ce bien
L'agent
ADDAHRAOUI Youssef - EI Mandataire Montpellier (34080)
Téléphone 0674170018

* Champ obligatoire

Les informations recueillies sur ce formulaire sont enregistrées dans un fichier informatisé par La Boite Immo agissant comme Sous-traitant du traitement pour la gestion de la clientèle/prospects de l'Agence / du Réseau qui reste Responsable du Traitement de vos Données personnelles. La base légale du traitement repose sur l'intérêt légitime de l'Agence / du Réseau. Elles sont conservées jusqu'à demande de suppression et sont destinées à l'Agence / au Réseau. Conformément à la loi « informatique et libertés », vous disposez des droits d’accès, de rectification, d’effacement, d’opposition, de limitation et de portabilité de vos données. Vous pouvez retirer votre consentement à tout moment en contactant directement l’Agence / Le Réseau. Consultez le site https://cnil.fr/fr pour plus d’informations sur vos droits. Si vous estimez, après avoir contacté l'Agence / le Réseau, que vos droits « Informatique et Libertés » ne sont pas respectés, vous pouvez adresser une réclamation à la CNIL. Nous vous informons de l’existence de la liste d'opposition au démarchage téléphonique « Bloctel », sur laquelle vous pouvez vous inscrire ici : https://www.bloctel.gouv.fr Dans le cadre de la protection des Données personnelles, nous vous invitons à ne pas inscrire de Données sensibles dans le champ de saisie libre.
Ce site est protégé par reCAPTCHA, les Politiques de Confidentialité et les Conditions d'Utilisation de Google s'appliquent.

Découvrir nos outils