Espace propriétaire
fr

Votre recherche

Sous-compromis
Fumay (08170)

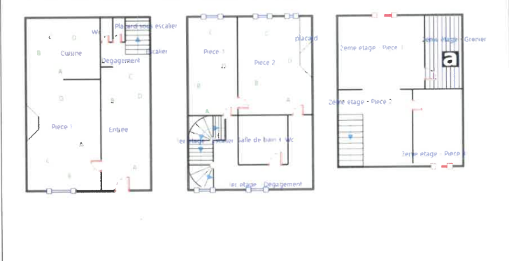
6 pièces - 120 m²

ARDENNES FUMAY Maison à rénover

29 000 €
Ref : GRVMA60006774
A propos de ce bien

Découvrez cette maison pleine de potentiel située à Fumay, idéale pour les amateurs de rénovation et de projets immobiliers.

Caractéristiques de la Maison :

  • 3 Chambres Spacieuses
  • Séjour
  • Cuisine
  • Grand Bureau ou Salon Polyvalent
  • Salle de Douche
  • Buanderie
  • WC Indépendant
  • Courette à l'Arrière
  • Grenier

Travaux à Prévoir :

  • Murs
  • Réfection des Sols
  • Rénovation des Plafonds
  • Traitement de l'Humidité
  • Révision du Système de Chauffage
  • Mise à Niveau de l'Électricité

Détails Techniques :

  • Chauffage Central au Gaz
  • Double Vitrage au Rez-de-Chaussée
  • Volets

Prix : 29 000 euros (honoraires charge vendeur)

Cette maison offre une belle opportunité de créer un espace à votre image. Pour plus d'informations ou pour organiser une visite, n'hésitez pas à nous contacter.


DPE vierge , ancienne version.

Côté France Réseau Franco-Belge-International d’agences et d’agents commerciaux.

Théo Gonzales Tel: 07 86 59 60 48

Les informations sur les risques auxquels ce bien est exposé sont disponibles sur le site Géorisques : www.georisques.gouv.fr

La présente annonce immobilière a été rédigée sous la responsabilité éditoriale de Richard Gonzales de la SARL Côté France (sans détention de fonds), titulaire de la carte de démarchage immobilier pour le compte de la société SARL Côté France. Achat vente location à vendre investissement location acheter - Cotefranceimmo.fr

Annonce proposée par un agent commercial

Descriptif de ce bien
Général
Code postal 08170
surface terrain 10 m²
Nombre de chambre(s) 3
Nombre de pièces 6
Nombre de niveaux 2
Détails
Nb de salle de bains 1
Type de cuisine Equipée
Mode de chauffage Gaz
Type de chauffage TRAD_TYPE_CHAUFF_CHAUDIERE
Format de chauffage Individuel
Murs mitoyens 2
Exposition Sud
Année de construction 1920
Financier
Prix de vente 29 000 €
Les honoraires d'agence seront intégralement à la charge du vendeur  
Energie
DPE GES
Autour du bien
  • Commerces et santé
  • Loisirs
  • Ecoles
  • Transports
  • Pratique
Contacter pour ce bien
L'agent
GONZALES-MARTINEZ Théo Mandataire Fumay (08170)
Téléphone 0786596048

* Champ obligatoire

Les informations recueillies sur ce formulaire sont enregistrées dans un fichier informatisé par La Boite Immo agissant comme Sous-traitant du traitement pour la gestion de la clientèle/prospects de l'Agence / du Réseau qui reste Responsable du Traitement de vos Données personnelles. La base légale du traitement repose sur l'intérêt légitime de l'Agence / du Réseau. Elles sont conservées jusqu'à demande de suppression et sont destinées à l'Agence / au Réseau. Conformément à la loi « informatique et libertés », vous disposez des droits d’accès, de rectification, d’effacement, d’opposition, de limitation et de portabilité de vos données. Vous pouvez retirer votre consentement à tout moment en contactant directement l’Agence / Le Réseau. Consultez le site https://cnil.fr/fr pour plus d’informations sur vos droits. Si vous estimez, après avoir contacté l'Agence / le Réseau, que vos droits « Informatique et Libertés » ne sont pas respectés, vous pouvez adresser une réclamation à la CNIL. Nous vous informons de l’existence de la liste d'opposition au démarchage téléphonique « Bloctel », sur laquelle vous pouvez vous inscrire ici : https://www.bloctel.gouv.fr Dans le cadre de la protection des Données personnelles, nous vous invitons à ne pas inscrire de Données sensibles dans le champ de saisie libre.
Ce site est protégé par reCAPTCHA, les Politiques de Confidentialité et les Conditions d'Utilisation de Google s'appliquent.

Découvrir nos outils